海原装修公司推荐|海原阅海澜境会所设计装修惊艳效果方案分享
文章来源: 人气:73 发表时间:2026-03-13
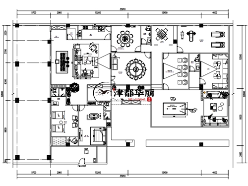
设计理念
今天分享的是海原阅海澜境400㎡私人会所定制设计装修,从一纸平面布局到落地惊艳效果,我们只靠实力说话。甲方带着需求与场地找到我们,没有过多框架,只有对会所设计装修品质的追求。设计师从初步构思到反复打磨,与甲方深度沟通、不断碰撞会所设计装修思路,包括私人KTV、VIP餐厅、红酒、雪茄、SPA、休闲区等,每一处动线、每一个细节、每一种格调,都在一次次调整中趋于完美与落地。不敷衍、不将就,只为贴合甲方心中的会所设计装修理想模样。在每一次会所设计装修中,设计师摒弃千篇一律的俗套设计,更专注把 400㎡的空间价值更大化,兼顾质感、实用性与氛围感。最终呈现的版本,让客户一眼心动、当场认可。














2026-03-13 73人浏览
下一篇:没有了
相关标签:
相关新闻
相关服务:
海原装修公司推荐|海原阅海澜境会所设计装修惊艳效果方案分享哪家好 海原装修公司推荐|海原阅海澜境会所设计装修惊艳效果方案分享报价 海原装修公司推荐|海原阅海澜境会所设计装修惊艳效果方案分享哪家便宜 海原装修公司推荐|海原阅海澜境会所设计装修惊艳效果方案分享排名 海原装修公司推荐|海原阅海澜境会所设计装修惊艳效果方案分享推荐 海原装修公司推荐|海原阅海澜境会所设计装修惊艳效果方案分享排行榜 海原装修公司推荐|海原阅海澜境会所设计装修惊艳效果方案分享前十名 海原装修公司推荐|海原阅海澜境会所设计装修惊艳效果方案分享怎么装修 海原装修公司推荐|海原阅海澜境会所设计装修惊艳效果方案分享装修注意事项 海原装修公司推荐|海原阅海澜境会所设计装修惊艳效果方案分享怎么设计?



















